АПАРТАМЕНТЫ НА ОЗЕРЕ ТУРГОЯК | TURGOYAK APARTMENTS
АРХИТЕКТОР: СЕРГЕЙ КУТЛЕР
Участок располагается на склоне горы при озере Тургояк в городе Миасс. На участке имеется комплекс из существующих построек, возведённых двадцать один год назад назад. Комплекс состоит из трёх крупных объектов: кирпичного гаража при въезде, дачного дома с баней из бревна. Все объекты расположены на горизонтальных площадках в несколько уровней следуя рельефу. Задача состояла в сохранении основных конструкций всех объектов, но с помощью небольших и осторожных изменений переработать их в объекты для постоянного комфортного использования и новой эстетической нагрузкой. Здание Банного комплекса претерпело минимальное количество планировочных изменений и было дополнено крытой террасой с обеденной зоной при существующей печи с мангалом. Верхняя часть отдана под рекреационную зону с открытой террасой, бассейном и беседкой. Имеющиеся на участке элементы из красного кирпича, что с течением времени приобрёл хаотичные оттенки, окрашены в чёрный цвет, через который удалось увязать всё многообразие использованных отделочных материалов ландшафте. Кроме того, весь комплекс обрёл единую эстетику благодаря использованию навесного деревянного декора, а также развил игру существующих объектов и многоплановость всей композиции.
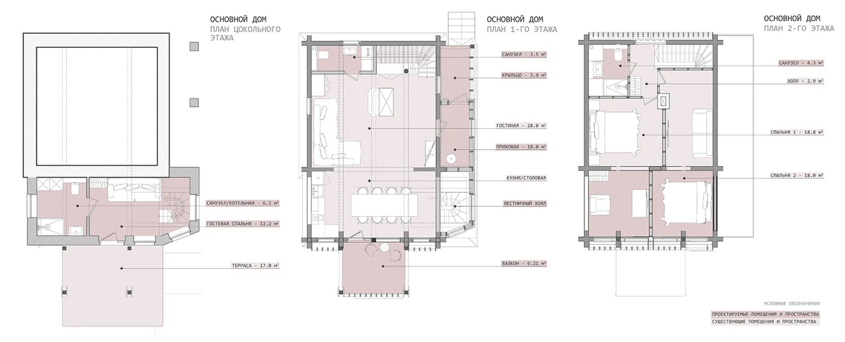
Так гараж был переработан в Гостевой дом, расширен и дополнен мансардным вторым этажом: на первом этаже расположилась студия, на втором этаже студия со спальней. Дачный дом был перепланирован и превращён Основной дом, в котором были предусмотрены отсутствующие помещения для удобного постоянного проживания, а также расширен за счёт имеющейся террасы на каждом из двух этажей.
